< zurück
Erweiterung Gemeinschaftsschule Grötzingen
Realisierungswettbewerb, 4. Preis
Erweiterung der Gemeinschaftsschule in Karlsruhe – Grötzingen
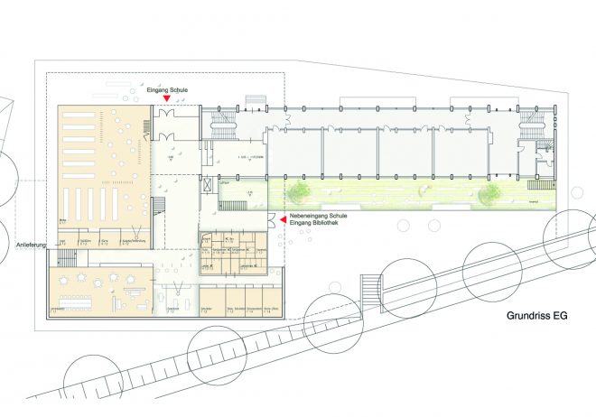
Die Erweiterung des Schlossschulgebäudes wird nördlich des Bestandsbaus platziert. Durch einen leichten Versatz in der Bauflucht und durch eine zurückversetzte Glasfuge (Luftraum und Aufzug) zwischen Bestand und Neubau bleibt der Solitärcharakter des denkmalgeschützten Bestandbaus erhalten. Der Neubau orientiert sich an den Gebäudelängen der Nachbarschaft.
Der neue Erweiterungsbau des Heinrich-Dietrich-Baus nimmt die Höhe und die Richtung des Bestandes auf und bildet gemeinsam mit diesem einen eigenständigen Baukörper auf dem Schulcampus.
