Rossmann +
Partner
Architekten

< zurück

Erweiterung Medizinische Zentren Stuttgart


Wettbewerb 2010 – Zentrum für Innere Medizin und Zentrum für Operative Medizin ZIM/ZOM.

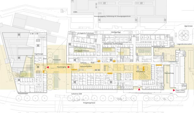
Die zukünftig in Nord- Südrichtung durch den Standort Katharinenhospital verlaufende Grünachse verbindet die nördlichen Stadteile über den Stadtgarten hinweg mit der Innenstadt. Diese völlig verkehrsfreie Promenade hat eine herausragende Bedeutung bei der Strukturierung des Areals. Sie ist als zukünftiger Hauptweg „Sickerlinie“ im stadträumlichen Gefüge für Fußgänger und Radfahrer, Garten- und Erholungsraum und wichtiger Aufenthaltsraum für Patienten. Sie wird Hauptachse der fußläufigen Erschließung des Standorts, an der alle zukünftigen Eingänge angeordnet werden.

Alle Gebäude werden zu einem flexiblen, multifunktionalen Organismus verwebt.
Die harmonische und funktionale Integration und Verknüpfung von Neu und Alt führt zu einer Effizienzverbesserung, optimierten und flexiblen Betriebsabläufen, kurzen Wegen und einer optimalen interdisziplinären Zusammenarbeit. Die Gebäude- und Erschließungsstruktur der Bestandsbauten wird weiterentwickelt und ergänzt. Der vorhandenen Halle des Katharinenhofs wird die neue Katharinengalerie beigestellt. Gemeinsam bilden diese beiden großzügigen und attraktiven Innenräume das Rückgrat des Krankenhauses.

Weitere
Projekte