< zurück
(ehemaliges) Waschhaus Dammerstock
Beseelt vom Geist des ‚Neuen Bauens‘ steht das historische Waschhaus nicht nur unter Denkmalschutz, sondern auch mit über 90 Jahren noch immer ständig unter Volldampf.
Als Lieferant der Heizenergie für den Dammerstock ist das Waschhaus nachts das leuchtende Zentrum der Siedlung und seit 1974 das Büro von Rossmann + Partner Architekten.
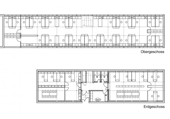
1928/29 von Otto Haesler (1880-1962) erbaut, übernahmen 1974 die Architekten von Rossmann + Partner das Gebäude, um es in enger Abstimmung mit dem Denkmalschutz, in ein Architekturbüro umzubauen. Dabei war der Wunsch nach optimalen Büroräumen mit der Forderung, das Waschhaus als Denkmal zu erhalten, nicht leicht in Einklang zu bringen.
Bei der letzten Sanierung 2004 wurde aus dem Obergeschoss entsprechend der ursprünglichen Gebäudestruktur ein großzügiger und kommunikativer Raum, der das interdisziplinäre Planen im Geiste des ‚Neuen Bauens‘ ermöglicht.
