< zurück
Staatliche Kunsthalle Baden-Baden
Die Staatliche Kunsthalle Baden-Baden wurde zwischen 1907 und 1909 von den Architekten Hermann Billing und Wilhelm Vittali erbaut. Umgeben vom Grün der Lichtentaler Allee ist die sachliche Nüchternheit des neoklassizistischen Baus der Rahmen für wechselnde Ausstellungen zeitgenössischer Kunst auf internationalem Niveau.
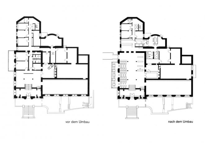
Mit der Eröffnung des neuen Sammler-Museums der Frieder Burda Stiftung in unmittelbarer Nachbarschaft der staatlichen Kunsthalle Baden-Baden ergeben sich neue Perspektiven, zumal eine direkte gläserne Brückenverbindung beide Häuser verknüpfen wird. Die Schaffung einer attraktiven, großzügigen Eingangshalle mit Café und Museumsshop soll dem Haus einen angemessenen Auftakt bzw. Verknüpfungspunkt geben. Durch Verlagerung wesentlicher Teile der administrativen Räume konnte das ehemals bescheidene Foyer in eine große Eingangshalle umgestaltet werden. Die Entfernung von tragenden Wänden erforderte schwierige Gründungsarbeiten sowie Verstärkungs- und Abfangungsarbeiten an den historischen Decken und Wänden.
Unter Beachtung der denkmalpflegerischen Ansprüche wurde die Natursteinterrasse vergrößert. Die bis auf den Boden erweiterten Fenster erlauben den Blick in den Park und auf den weißen Museumsbau von Richard Maier. Die neue Innenausstattung der Eingangshalle mit Café und Kasse sowie der Museumsshop und der Gastronomiebereich orientieren sich als moderne Ergänzungen in Material und Farbigkeit an dem neoklassizistischen Bau. Die ergänzten Stuckdecken und die Bauelemente der veränderten Fassaden führen dagegen den denkmalgeschützten Bestand fort.
