Neubau Materialwissenschaftliches Zentrum für Energiesysteme (MZE)
< zurück
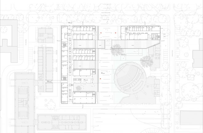
KIT – Materialwissenschaftliches Zentrum Karlsruhe
Wettbewerb 2011 – Ankauf.
Neubau Mikro Tribologie Centrum (µTC)
Durch die neuen Institutsgebäude des MZE + µTC wird der Bereich um das Audimax städtebaulich gefasst. Die zweigeschossigen Neubauten und das Audimax fügen sich so zu einem Block. Nach außen bilden die geraden Fassaden den räumlichen Abschluss. Im Gegensatz dazu formt die zum Innenhof offene, kammartige Gebäudestruktur einen spannungsreich gegliederten neuen Stadtraum innerhalb des KIT.
