< zurück
Mann Mobilia Karlsruhe
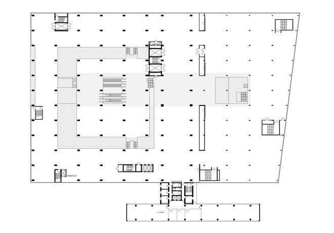
Generalsanierung, Umbau und Erweiterung eines Einrichtungshauses
Durch die Erweiterung und den Totalumbau konnte die Verkaufsfläche verdoppelt und die gesamte Erschließung des Hauses neu geordnet werden.
Oberflächenbündig eingebaute große Glasflächen differenzieren die einheitliche Metallfassade.
Das scheinbar schwebende Flugdach markiert mit seinen Kanten ein virtuelles Volumen im Stadtraum und verschafft dem Einrichtungshaus als „Landmark“ die angemessene optische Präsenz. Das Einrichtungshaus beeindruckt an strategischer Stelle durch seine Größe und macht als elegant verhüllter Container neugierig auf seinen Inhalt.
Das früher introvertierte und tageslichtscheue Haus öffnet sich über mehrgeschossige Ganzglasfassaden zur Stadt. Ein- und Ausblicke sowie bis zu 7-geschossige Atrien mit Brücken, Rolltreppen und Aufzügen als Stahl-Glaskonstruktion akzentuieren die ansonsten neutralen, flexibel einzurichtenden Verkaufsflächen.
BDA-Preis Baden-Württemberg 2002
Link zu BDA
